
風淋傳遞窗的功能與原理
風淋傳遞窗的功能與原理
在潔凈室、電子廠房等對環境潔凈度要求極高的場所,風淋傳遞窗作為一種重要的空氣凈化設備,風淋傳遞窗功能與原理至關重要。以下是關于風淋傳遞窗的功能與原理的詳細介紹。
一、風淋傳遞窗的功能
空氣凈化:
風淋傳遞窗能夠有效地過濾進入室內的空氣,去除空氣中的塵埃、細菌等微粒,保證潔凈室內的空氣潔凈度。
防止污染:風淋傳遞窗可以在人員和物品進入潔凈室前進行初步的空氣凈化,從而防止外部污染進入室內。
減少交叉污染:風淋傳遞窗通過氣流的作用,減少操作人員在進入潔凈室時攜帶的微生物和塵埃,降低交叉污染的風險。
提高工作效率:風淋傳遞窗可以快速實現對物品和人員的空氣凈化,縮短進入潔凈室的時間,提高工作效率。

二、風淋傳遞窗的原理
氣幕效應風淋傳遞窗通過高速氣流形成氣幕,使氣流在傳遞窗兩側形成一定壓力,阻止外部空氣和污染物進入潔凈室。
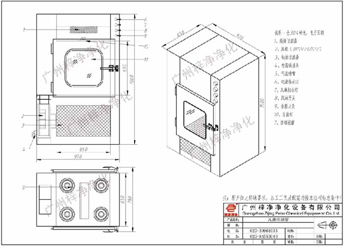
過濾凈化:傳遞窗內部裝有高效過濾器和噴嘴,對進入的空氣進行過濾,確保送入潔凈室內的空氣達到一定的潔凈度。
空氣流動:當人員或物品通過傳遞窗時,風淋傳遞窗會自動啟動,形成垂直向下或水平向外的氣流,將人員和物品表面的塵埃和污染物吹離。
快速關閉:風淋傳遞窗在人員或物品通過后,會迅速關閉,防止未經過濾的空氣進入潔凈室。

風淋傳遞窗的具體工作原理如下:
啟動階段:當人員或物品準備進入潔凈室時,按下傳遞窗的啟動按鈕,風淋傳遞窗開始工作。
氣流形成:風淋傳遞窗高效過濾器啟動,產生高速氣流,形成氣幕,阻止外部空氣進入。
空氣凈化:風淋傳遞窗通過高效過濾器過濾后的空氣,對人員和物品進行凈化。
通過階段:人員和物品通過風淋傳遞窗,氣流將表面污染物吹離。
關閉階段:人員和物品通過后,風淋傳遞窗自動關閉,阻止未經過濾的空氣進入潔凈室。

總之,風淋傳遞窗作為一種重要的空氣凈化設備,在潔凈室等對環境潔凈度要求極高的場所中發揮著重要作用。了解風淋傳遞窗功能與原理,有助于提高潔凈室的管理水平和空氣質量。


全自動傳送窗|機器人機械臂傳遞窗
高端風淋室|滿焊接風/貨淋室
超凈工作臺
可移動式潔凈棚
裝配式潔凈棚
不銹鋼FFU
冷板烤漆FFU過濾單元
鍍鋁鋅板FFU